弊社が取り扱っております土地情報に関する情報です。
詳しくは弊社ナチュラルハウジングまでお問合せ下さい。
TEL:0439-80-5311
千葉県富津市更和
新着
- 物件所在
- 千葉県富津市更和
- 土地面積
- 176.00㎡(53.23坪)
- 延べ床面積
- 70.80㎡ (21.41坪)
- 価格
- 1890万円
- 現状
- 空き家
- 接道状況
- 西3.0m 公道 接面11.0m
- 備考
- 築年数/2007年10月(築18年)2階建
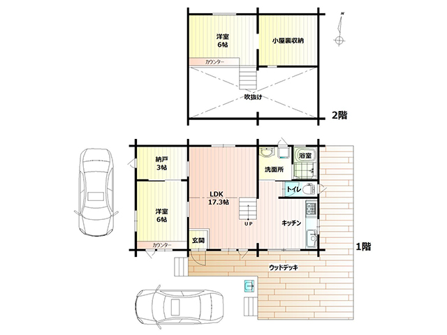
当社施工の間取り2SLDKのログハウスです
吹き抜けを通じて1階・2階につながる開放的な設計
納戸や小屋裏は多目的に活用可能
エアコン、照明器具が備わっているので初期費用を抑えられます
広々としたウッドデッキも魅力です
駐車場/空有(2台)無料 物件からの距離0m カースペース
JR内房線「上総湊」駅までバスで7分(更和下車 徒歩5分)
富津市立天羽小学校まで徒歩7分
コンビニまで徒歩4分























